





















Villa con Piscina e Vista Mare a Torre dei Corsari
Villa - Via Amerigo Vespucci 70 - ArbusDescrizione
1 Ospiti
4 camere da letto
2 bagni
178 m2
Con piscina privata affacciata sul mare, loggiato coperto ideale per pranzi all’aperto e una vista mozzafiato sulla Costa Verde, questa villa è una rara opportunità a Torre dei Corsari.
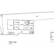
In una posizione davvero unica a Torre dei Corsari, splendida località affacciata sulla Costa Verde della Sardegna, proponiamo in vendita una villa bifamiliare disposta su due livelli, piano terra e primo piano, con piscina privata e ampio cortile.
Torre dei Corsari, frazione del comune di Arbus, è celebre per le sue dune dorate che si fondono con il mare turchese e la vegetazione mediterranea – uno scenario naturale suggestivo e incontaminato che rende questa zona una delle più affascinanti del litorale occidentale dell’isola.
La villa si apre al piano terra con un ingresso riservato che introduce alla zona giorno composta da soggiorno, sala da pranzo e cucinotto. A questo livello si trovano inoltre due camere da letto, un bagno, un disimpegno e una loggia coperta affacciata sul cortile e sulla piscina, perfetta per momenti conviviali all’aperto. La scala interna conduce al primo piano, dove si trovano ulteriori due camere da letto, un secondo bagno e spazi accessori ideali per ospiti o eventuali destinazioni ricettive.
L’esterno confortevole e riservato si estende su un cortile molto spazioso, che ospita anche due ripostigli esterni separati dall’abitazione: utili come deposito o locali di servizio.
La piscina privata rappresenta il cuore della zona outdoor, regalando privacy, relax e una vista panoramica sul mare circostante.
Questa villa rappresenta una proposta ideale sia come residenza principale che come casa vacanze o investimento turistico. La combinazione tra l’incantevole contesto naturalistico di Torre dei Corsari, gli spazi generosi, la piscina e la struttura rifinita in stile mediterraneo la rende una proprietà difficile da trovare sul mercato.
In una posizione davvero unica a Torre dei Corsari, splendida località affacciata sulla Costa Verde della Sardegna, proponiamo in vendita una villa bifamiliare disposta su due livelli, piano terra e primo piano, con piscina privata e ampio cortile.
Torre dei Corsari, frazione del comune di Arbus, è celebre per le sue dune dorate che si fondono con il mare turchese e la vegetazione mediterranea – uno scenario naturale suggestivo e incontaminato che rende questa zona una delle più affascinanti del litorale occidentale dell’isola.
La villa si apre al piano terra con un ingresso riservato che introduce alla zona giorno composta da soggiorno, sala da pranzo e cucinotto. A questo livello si trovano inoltre due camere da letto, un bagno, un disimpegno e una loggia coperta affacciata sul cortile e sulla piscina, perfetta per momenti conviviali all’aperto. La scala interna conduce al primo piano, dove si trovano ulteriori due camere da letto, un secondo bagno e spazi accessori ideali per ospiti o eventuali destinazioni ricettive.
L’esterno confortevole e riservato si estende su un cortile molto spazioso, che ospita anche due ripostigli esterni separati dall’abitazione: utili come deposito o locali di servizio.
La piscina privata rappresenta il cuore della zona outdoor, regalando privacy, relax e una vista panoramica sul mare circostante.
Questa villa rappresenta una proposta ideale sia come residenza principale che come casa vacanze o investimento turistico. La combinazione tra l’incantevole contesto naturalistico di Torre dei Corsari, gli spazi generosi, la piscina e la struttura rifinita in stile mediterraneo la rende una proprietà difficile da trovare sul mercato.
Leggi tutto
Leggi meno
Caratteristiche
Occupazione standard: 1
Occupazione max.: 1
Piano: terra
Ascensore: No
Località
Via Amerigo Vespucci 70 - Arbus





















